Adroscan

What we offer

Services

Construction Documentation

3D interactive image of your site with the ability to take high-resolution pictures.

Drone Documentation

Bird’s-eye view of your entire site with 3D images, scans, and videos.

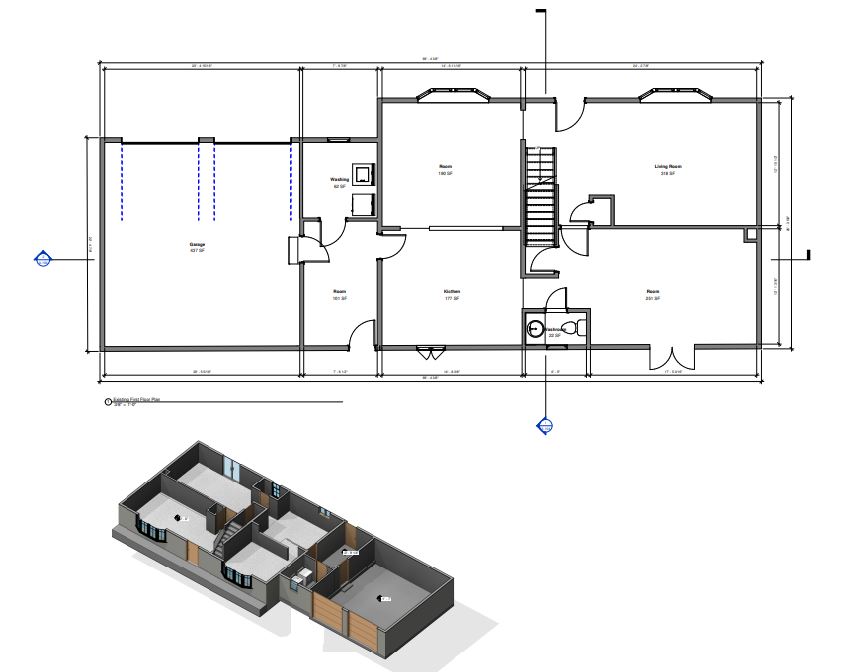
As-Built plans

Precise measurements of your site with an in-depth floor plan.

BIM Modeling

3D model of your building or site

3D Virtual Tours

3D virtual walk-through of any property.​

Virtual Staging

Enhance your 3D walkthrough with virtually staged furniture.​

See Demo

What we do

About

3D laser scans steer beams throughout spaces, where 3D objects deflect them.

A laser rangefinder records deflection distance to quickly and accurately capture surface shapes.

Finally, state-of-the-art software admixes, or combines, multiple surface models from different viewpoints, to construct a virtual 3D model.

Our Works

Portfolio

New York, NY

New York, NY

Ewing, NJ

Ewing, NJ

Brooklyn, NY

Brooklyn, NY

Staten Island, NY

Staten Island, NY

Brooklyn, NY

Brooklyn, NY

Brooklyn, NY

Brooklyn, NY

Brooklyn, NY

Brooklyn, NY

Brooklyn, NY

Brooklyn, NY

Brooklyn, NY

Brooklyn, NY

North Miami, FL

North Miami, FL

Lakewood, NJ

Lakewood, NJ

Brooklyn, NY

Brooklyn, NY

Staten Island, NY

Staten Island, NY

Brooklyn, NY

Brooklyn, NY

Contact